HOUSE IN OREOKASTRO

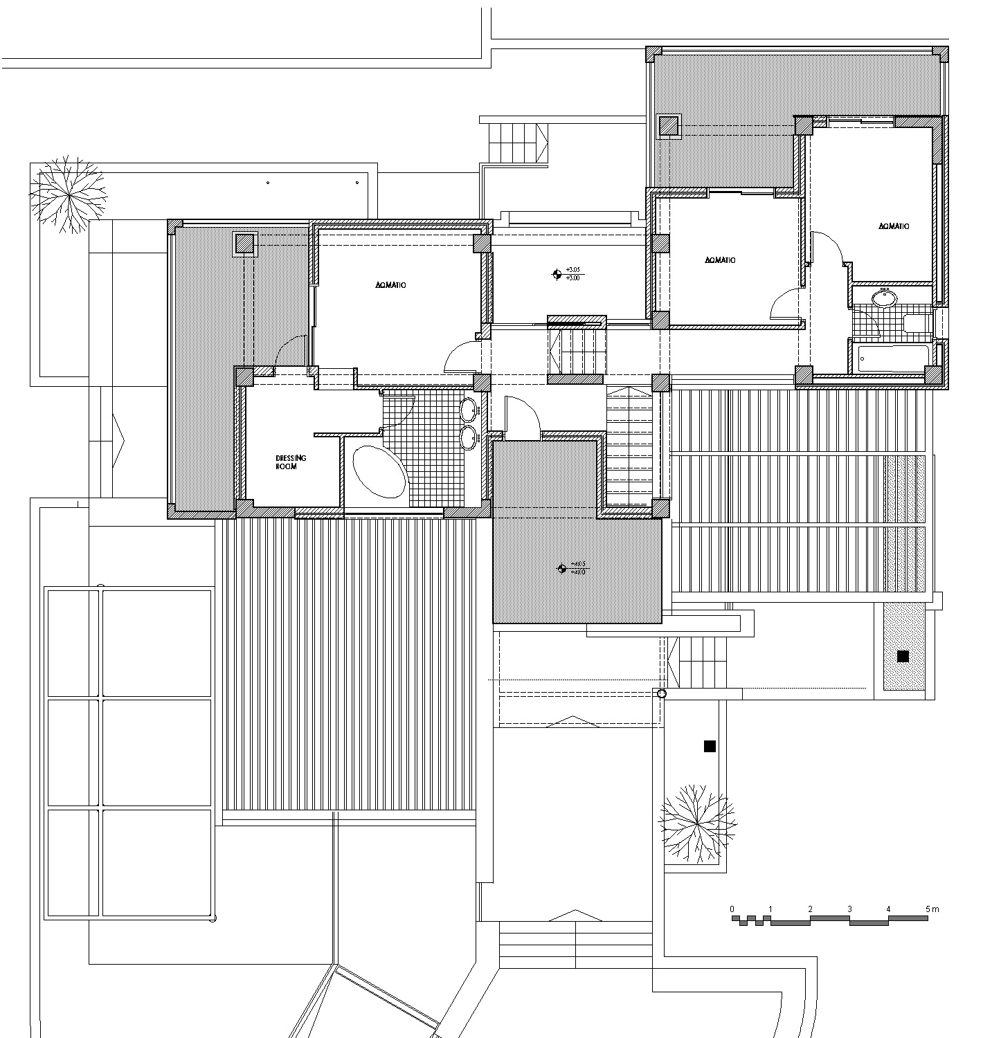
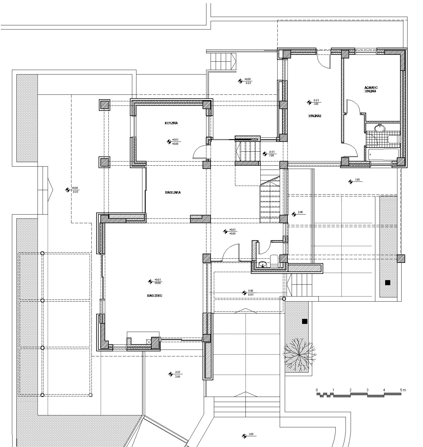
The detached house is organized in three large volumes which are hinged at the center with the lobby, the circulation space and vertical communication space. The ground floor is developed on two levels with little difference in level and includes the entry and the living rooms on the first level and two bedrooms with bathroom on the second one. The first floor contains the main bedroom with the necessary auxiliary spaces. All the main sites expand externally with large semi-outdoor spaces and balconies.

Oreokastro, Thessaloniki

2001