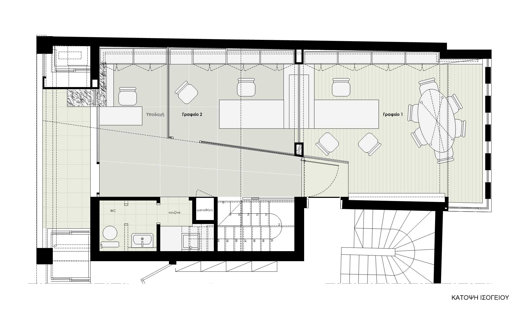
Refurbishment of the office areas of a structural engineers’ company in two levels. The first level houses the reception room, two offices and meeting rooms. On the second level, an open workspace and auxiliary spaces are located.
2005
Thessaloniki
INTERIORS / OFFICES / 03 Aug 2018