SHOPS AND RESIDENCES COMPLEX IN STAVROUPOLI

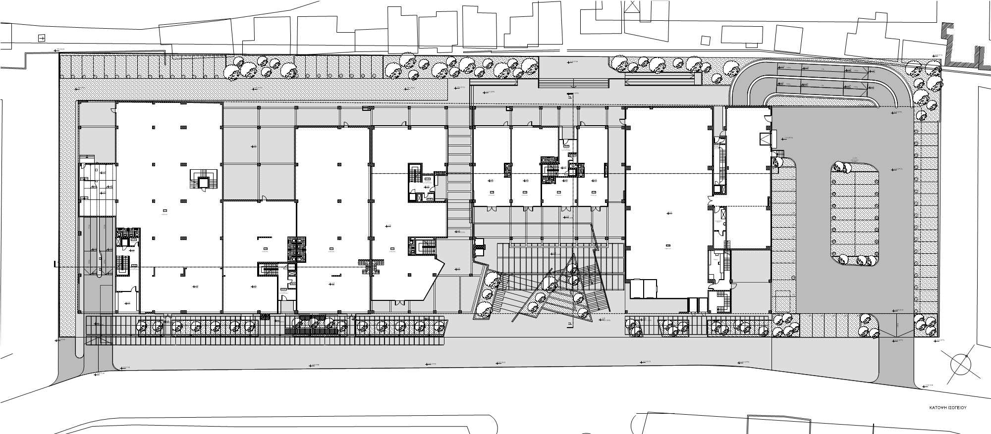
Housing complex, which is organized in autonomous building units with independent entrances and staircases. The ground floor shops, which are put together with the use of an arcade made of steel frames, direct to a big public area. This area functions as an outdoor living room. Its bigger parts are sheltered by a lightweight steel construction similar to the arcade.

2005

Stavroupoli, Thessaloniki