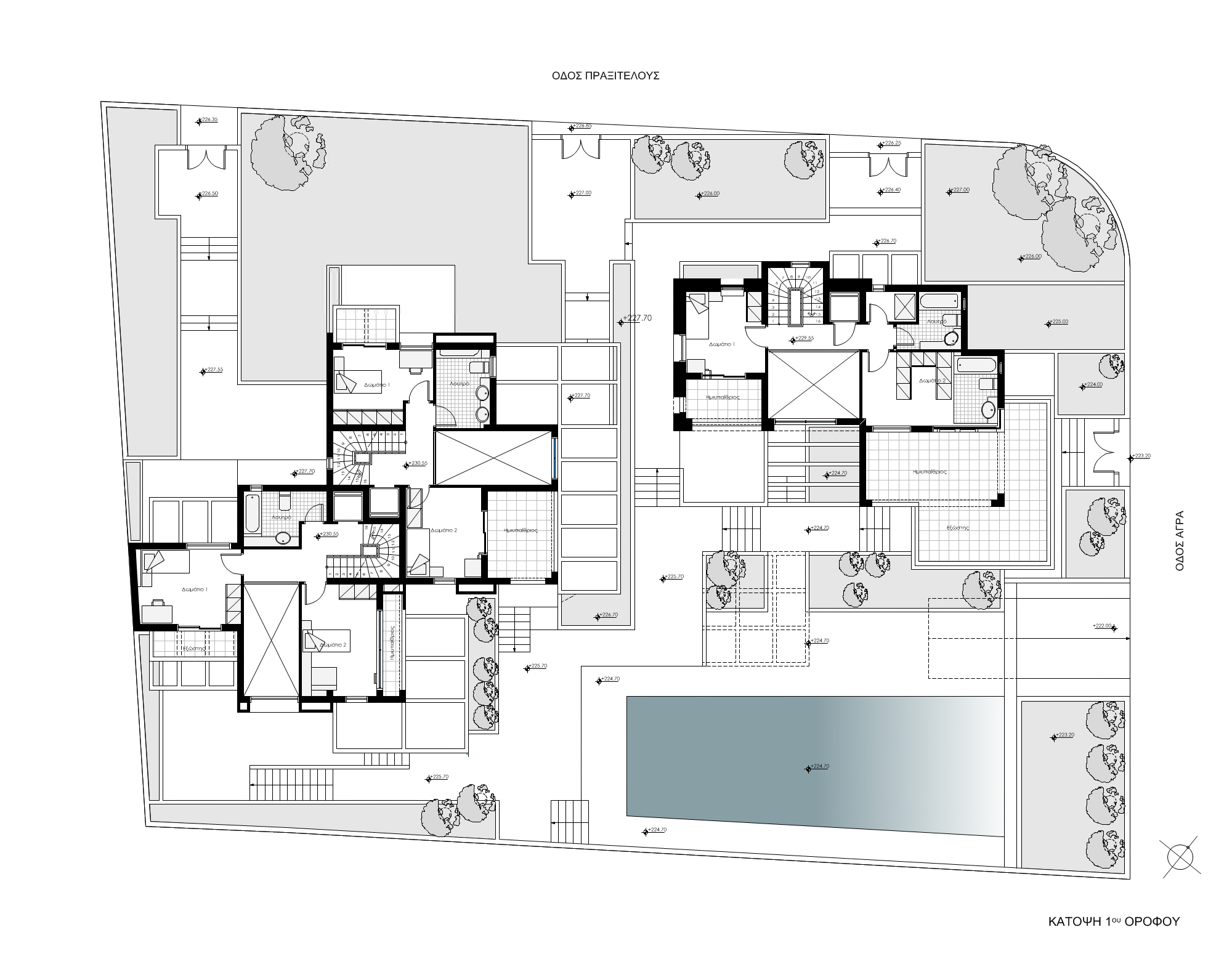
RESIDENTIAL COMPLEX | PANORAMA II

Group of three three-storey houses arranged in two unities. On the highest level of the building ground, the two smaller houses of 140 sq.m. each are located in a united mass. The larger house of 180 sq.m. is independent and is situated on a lower level. The outdoor areas of the residential complex are communal and all residences have direct access to them.

Panorama, Thessaloniki

2005