RETAIL STORE, OFFICES AND EDUCATION COMPLEX | WEST ENTRANCE

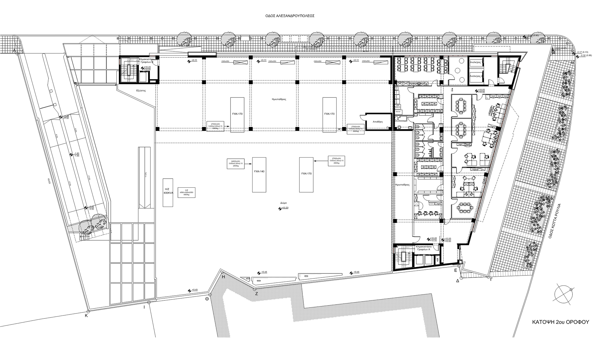
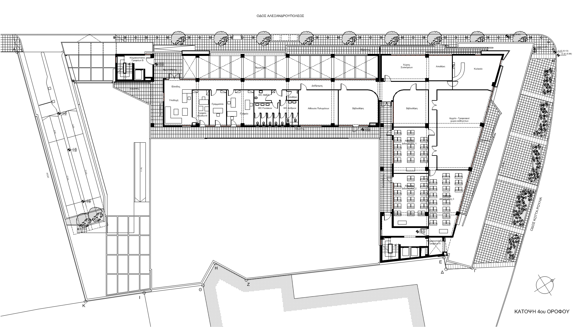
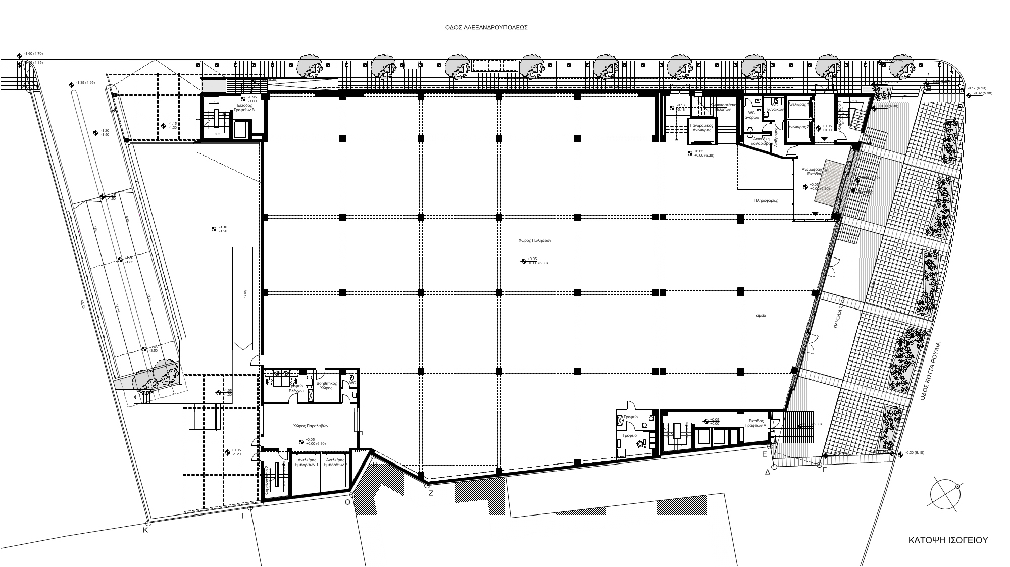
The building combines several and diverse uses into a single block. To comply with the different requirements, the building expands around the corner of two streets and has three separate entrance halls and an entrance to an underground parking area. The ground and first floor, which reach the maximum allowable coverage of the plot, are occupied by the “Media Markt” electrical equipment and electronics store. Service area and entrance are towards the backside of the store. Storage rooms are located at the first underground floor, while other two underground floors are used for parking. The second floor is used for the managerial offices of the store. Third and fourth floor are used for offices and the fifth floor is used for a Business Administration College with a separate entrance. To cope with the diversity of the proportions generated by the different uses, a unifying approach was used for the design of the facades. This relies on a wide-ranging pattern for the arrangement of composite aluminium panels and the extensive use of louvers in order to protect office areas from the western sunlight.

Thessaloniki

2006