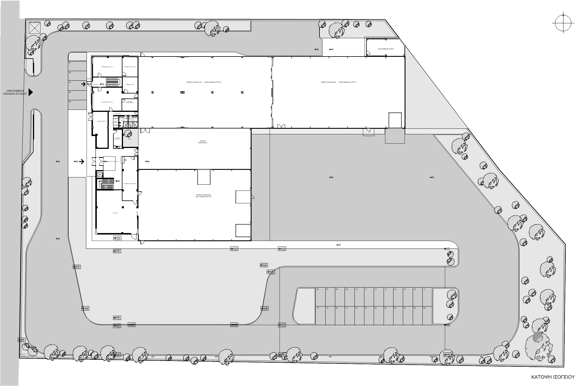
EXPANSION OF AN ELECTRICAL EQUIPMENT INDUSTRIAL BUILDING

Expansion of an electrical equipment manufacturing factory, including the interior design of the administration offices. The existing building has an area 1650 m2 and the expansion 1850 m2. The office building, which corresponds to the front part of the complex, is completely redesigned and refurbished.

Kalochori, Thessaloniki

2007