ΣΥΓΚΡΟΤΗΜΑ ΕΞΟΧΙΚΩΝ ΚΑΤΟΙΚΙΩΝ | ΣΑΝΗ I

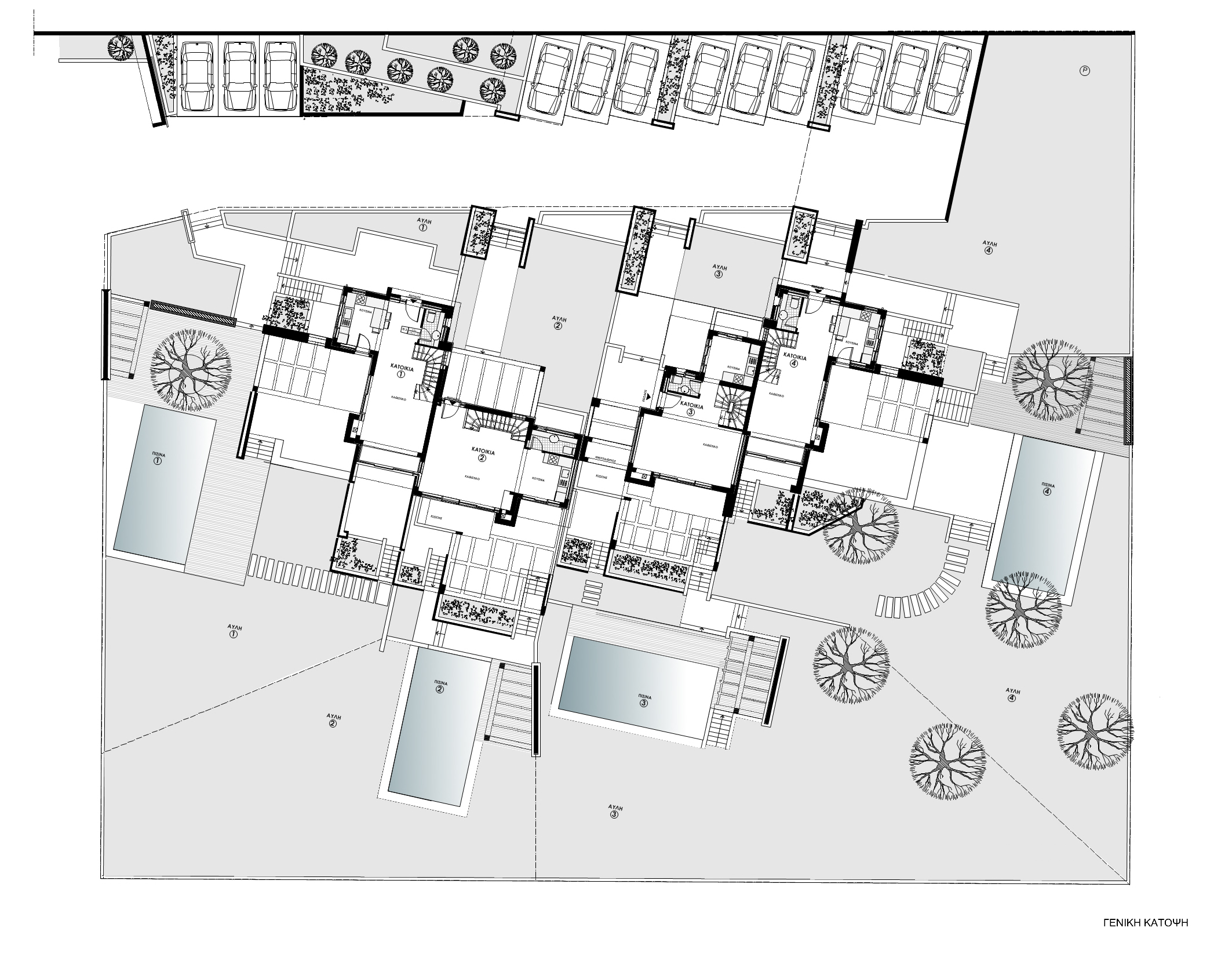
Το συγκρότημα εμβαδού 560τ.μ. αποτελείται από τέσσερις εξοχικές κατοικίες και βρίσκεται σε επικλινές αγροτεμάχιο στη Σάνη Χαλκιδικής. Στοιχεία της αρχιτεκτονικής μορφολογίας και υλικών του κτιρίου χρησιμοποιούνται και στη διαμόρφωση του περιβάλλοντα χώρου με πέργκολες, πισίνες  και χώρους πρασίνου.

Σάνη, Χαλκιδική

2007