RESIDENCΕ IN OREOKASTRO

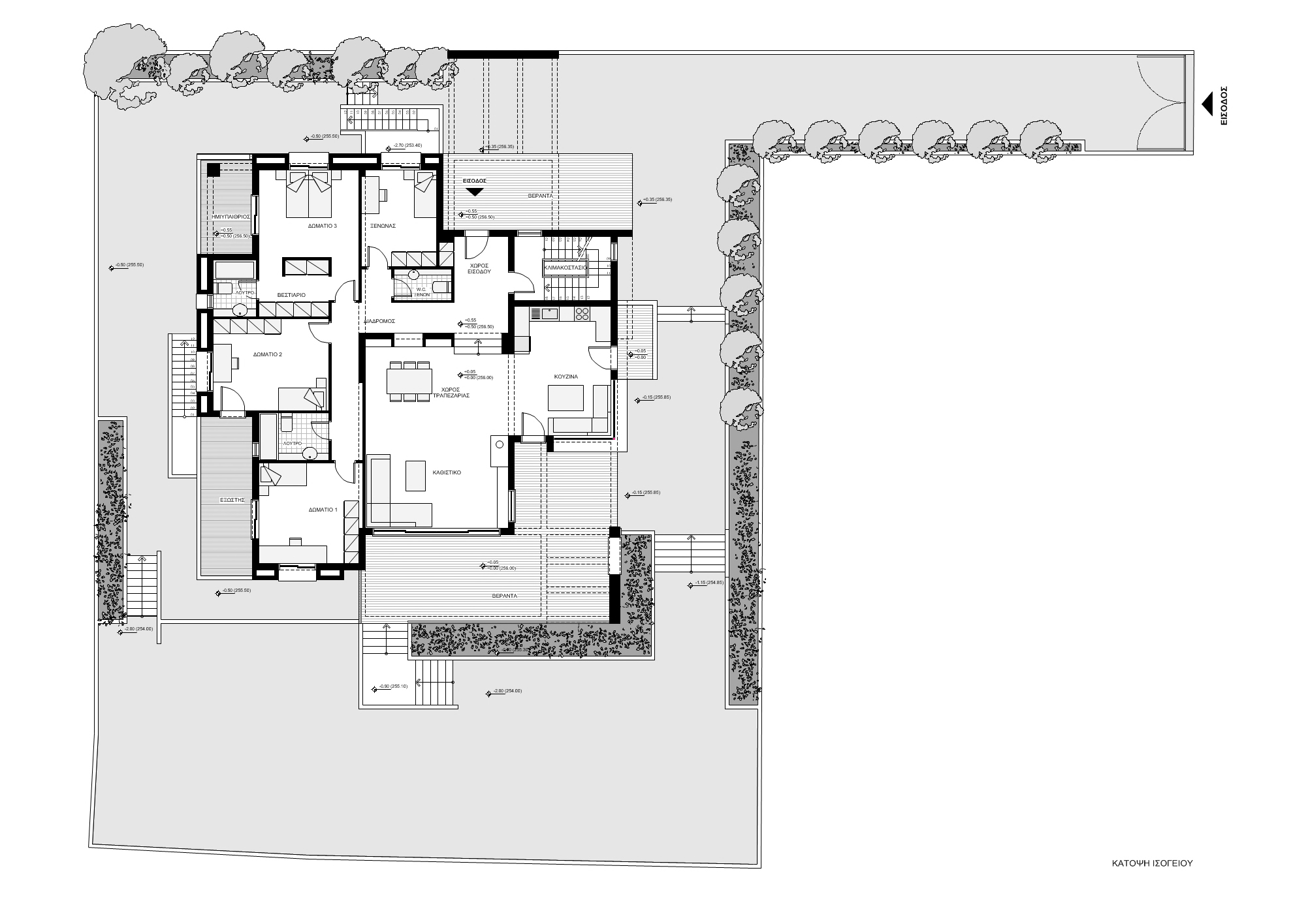
One-storeyed house with basement and total area of 400 sq.m. The entrance is on the north side of the plot. The living space is organized into two levels. At the entrance level there are three rooms with two bathrooms and guest room with WC. The living rooms (sitting room, kitchen) are at a lower level. There is access to the basement and the soffit through well hole.

Oreokastro, Thessaloniki

2010