SHOWROOM AND OFFICE BUILDING IN OREOKASTRO

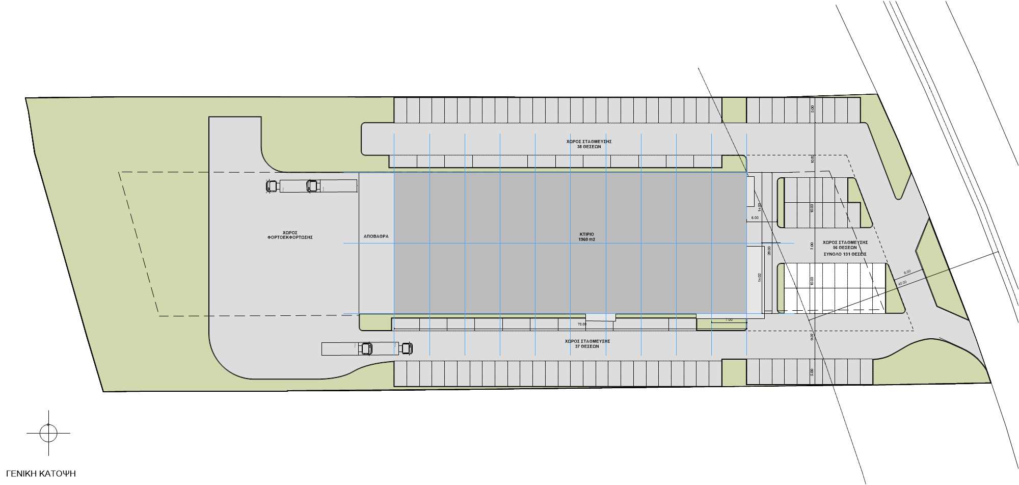
The showroom and office building of 1960 sq.m. is placed on a plot of land with a total area of 10,000 sq.m., in Oreokastro, Thessaloniki. The proposal includes 131-seat parking space, dock and cargo unloading area. In addition, a small cafe / leisure area is proposed.

Oreokastro, Thessaloniki

2018