ΚΤΙΡΙΟ ΚΑΤΟΙΚΙΩΝ ΣΤΗΝ ΘΕΡΜΗ

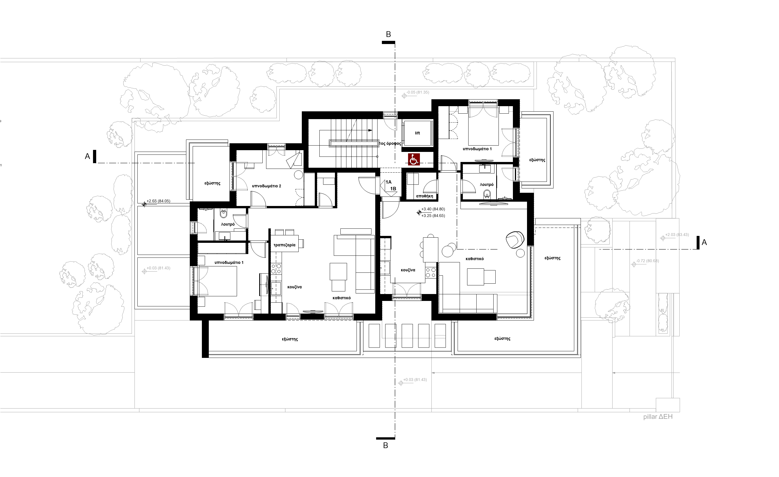
Το κτίριο τοποθετείται κεντρικά σε οικόπεδο εμβαδού 550 τ.μ. και αναπτύσσεται σε τρία επίπεδα. Το ισόγειο διαμορφώνεται ως pilotis με την κεντρική είσοδο και χώρους στάθμευσης οχημάτων. Στον πρώτο και δεύτερο όροφο χωροθετούνται συνολικά τρία διαμερίσματα. Στον πρώτο όροφο βρίσκονται τα δύο διαμερίσματα με επιφάνειες  περίπου 80.00 τ.μ. ενώ στο δεύτερο όροφο βρίσκεται ένα οροφοδιαμέρισμα συνολικής επιφάνειας περίπου 160.00 τ.μ. Το κοινόχρηστο κλιμακοστάσιο καταλήγει σε βατό δώμα του κτιρίου όπου κατασκευάζεται μεταλλική πέργκολα και διαμορφώνεται χώρος υπαίθριου καθιστικού με οπτική φυγή στη θέα του Ολύμπου.

Θέρμη, Θεσσαλονίκη

2021

Υπό Κατασκευή