ΔΗΜΑΡΧΙΑΚΟ ΜΕΓΑΡΟ ΑΓ. ΠΑΡΑΣΚΕΥΗΣ

Η μορφή του Δημαρχιακού Μεγάρου Αγίας Παρασκευής οφείλει να ανταποκρίνεται στις ιδιαιτερότητες της χρήσης του αλλά και στα δεδομένα μιας ευρύτερης κλίμακας.  Κρίναμε σημαντική την ανάγκη της ισχυρής αυτόνομης παρουσίας του κτιρίου που θα το καταστήσει σημείο αναφοράς στην περιοχή.  Ταυτόχρονα θα συμβάλλει με την παρουσία του στη βελτίωση του άμεσου αστικού περιβάλλοντος το οποίο στερείται ιδιαίτερου χαρακτήρα.  Σε αυτά τα ζητούμενα ανταποκρίνονται μία σειρά επιλογών που σχηματοποιούν την τελική πρόταση.

Μια αρχική επιλογή αφορούσε την σαφήνεια της μορφολογίας συνδυασμένη με καθαρότητα και ομοιογένεια στον χειρισμό των όψεων. Μία δεύτερη απόφαση αφορούσε τον δυναμισμό και τις πλαστικές ποιότητες του όγκου.  Χωρίς να αναιρείται η προηγούμενη επιλογή, με επιμέρους επεξεργασίες και αξιοποίηση του σχήματος, το κτίριο πρέπει να διαθέτει μία  δυναμική γλυπτική παρουσία.  Με αυτό τον τρόπο θα αντιπαρατίθεται με αξιώσεις στο ασαφές και επιθετικό τοπίο των πολυκατοικιών.

Βασική πρόθεση του σχεδιασμού αποτέλεσε η δημιουργία ενός κτιρίου ανοιχτού στον πολίτη και στο κοινό που εκφράζει την απαίτηση για διαφάνεια και ελευθερία, ενσωματώνει τις συμβολικές και χωρικές ποιότητες που το καθιστούν κέντρο λήψης δημοκρατικών αποφάσεων και ταυτόχρονα διαφυλάττει την ενότητα και το κύρος της δημοτικής αρχής και των συνεργαζόμενων φορέων.

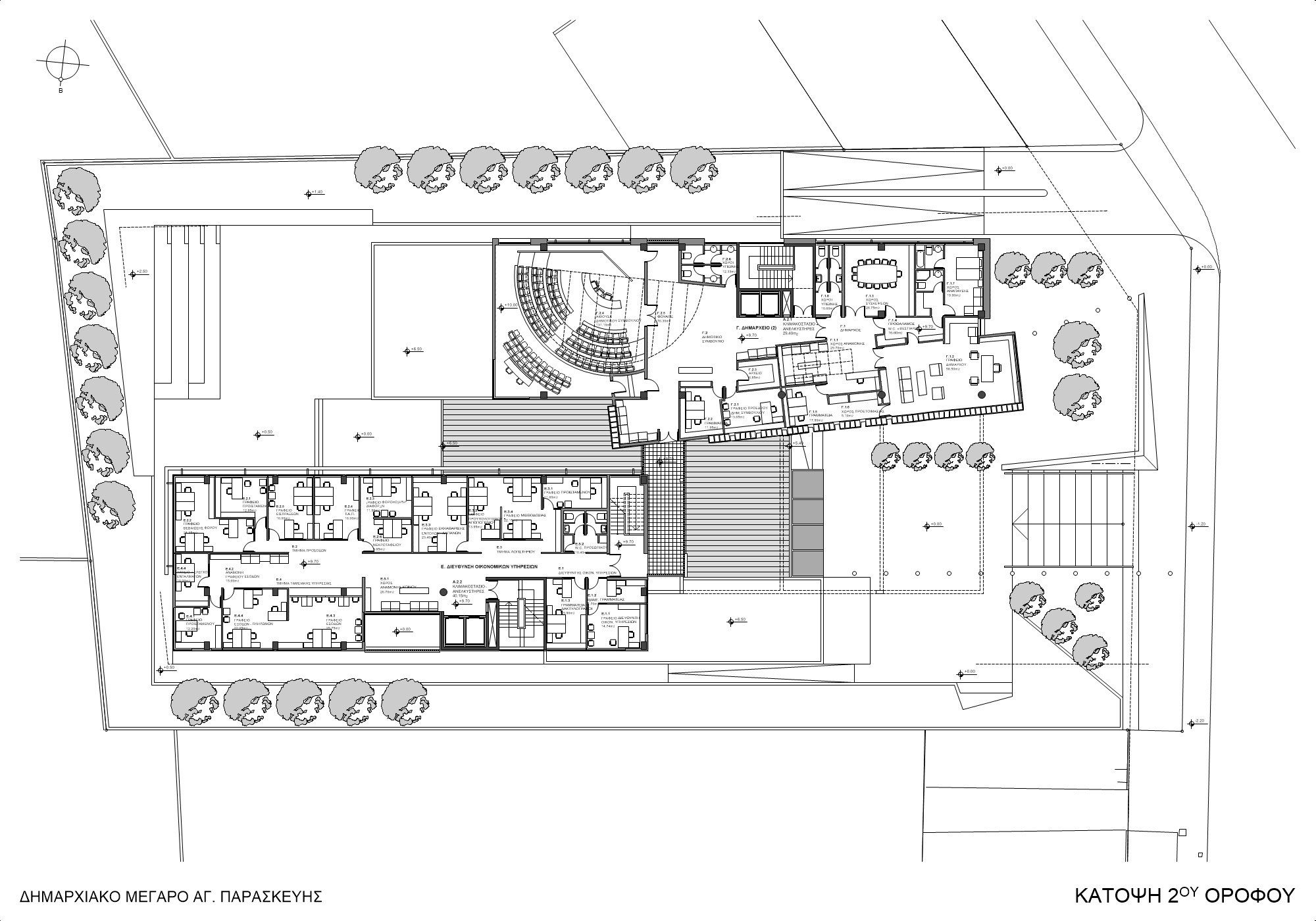
Ο δημόσιος χαρακτήρας του Δημαρχιακού μεγάρου και η συνύπαρξη χρήσεων με διαφορετικό περιεχόμενο υπαγόρευσαν το στερεομετρικό σχήμα του κτιρίου που συγκροτείται από την άρθρωση δύο βασικών όγκων πάνω σε μία διευρυμένη βάση.  Η προγραμματική αυτή διάκριση που διασπά το κτίριο σε τρείς ενότητες αντανακλά την γενική ομαδοποίηση των λειτουργιών και συμβάλλει στη σαφέστερη αναγνωσιμότητα του.

Αγ. Παρασκευή, Αττική

2001

Διαγωνισμός

Συνεργάτες:

Βεργόπουλος Σταύρος
Δήμτσας Νίκος
Σταμέλου Αναστασία
Σχολίδης Ιωάννης

Σύμβουλοι στατικών: ΜΟΝΟΛΙΘΙΚΗ ΜΕΛΕΤΩΝ Ε.Ε.
Σύμβουλοι Η/Μ: Παναγιώτης Κικίδης & Συνεργάτες