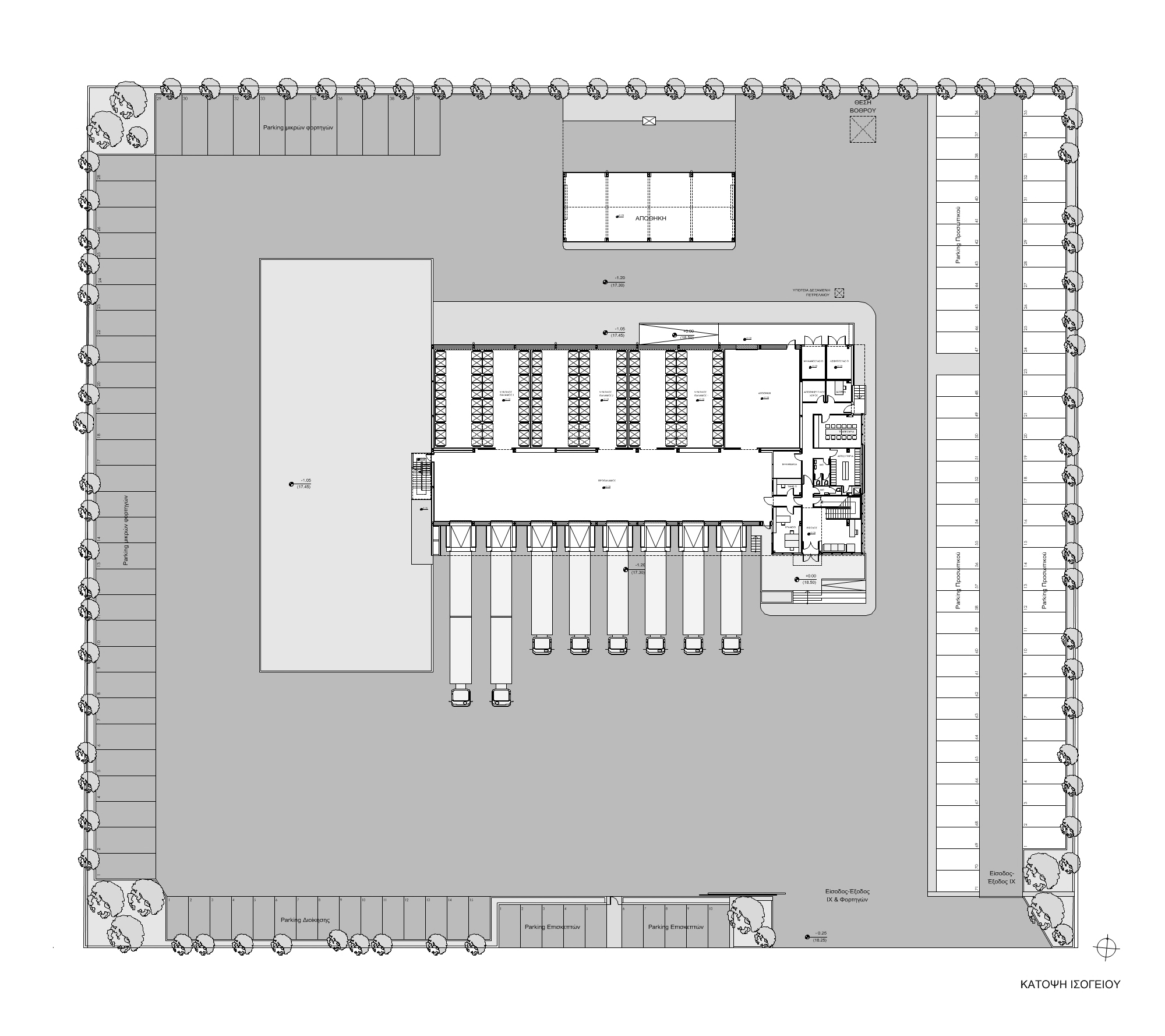
DAIRY DISTRIBUTION UNIT “KOYKAKIS FARM”

The building operates as a unit for temporary storage and distribution of dairy products. Two-storey cold storage rooms and the shipment area occupy the biggest part of the building. The rest of the building shelters the administrative office areas of the company distributed at two levels with a total area of 740 m2.

Neochorouda, Thessaloniki

2007