SHOPS AND RESIDENCES COMPLEX | PERAIA II

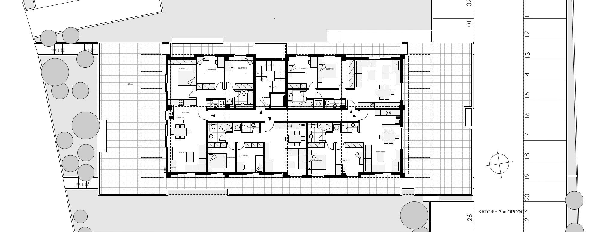
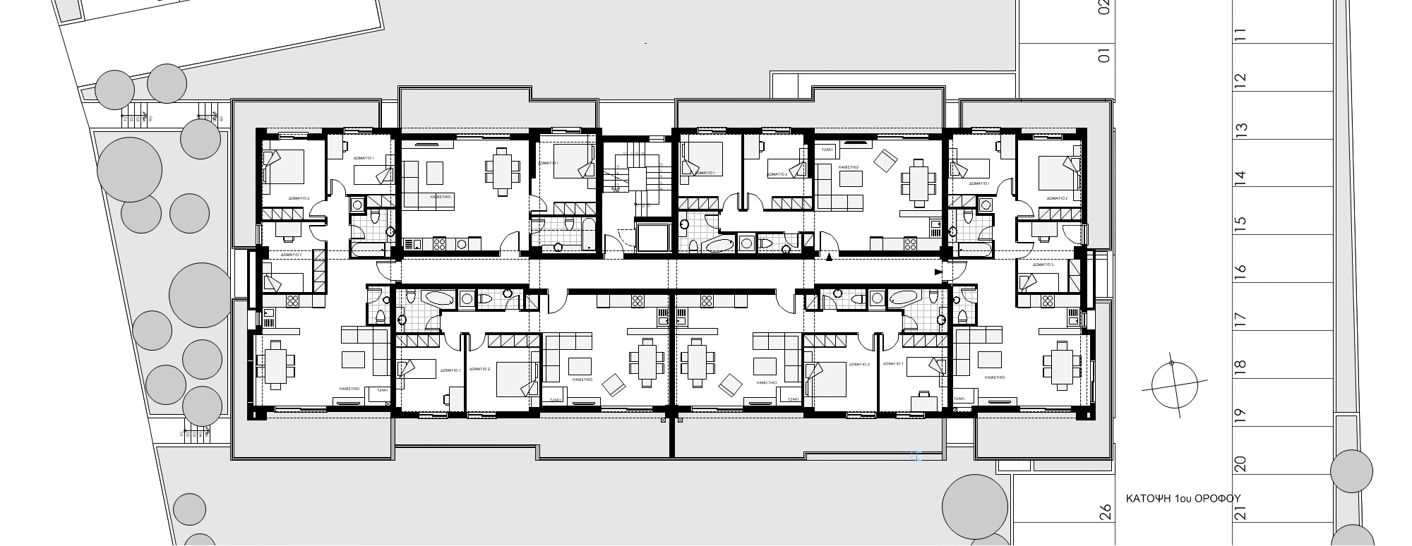
The building houses shops on the ground floor, with a total coverage of 530 m2. It has three floors and sixteen flats in total, each of which has an area of approximately 60 m2.

Peraia, Thessaloniki

2008