RESIDENCE IN KASSANDREIA

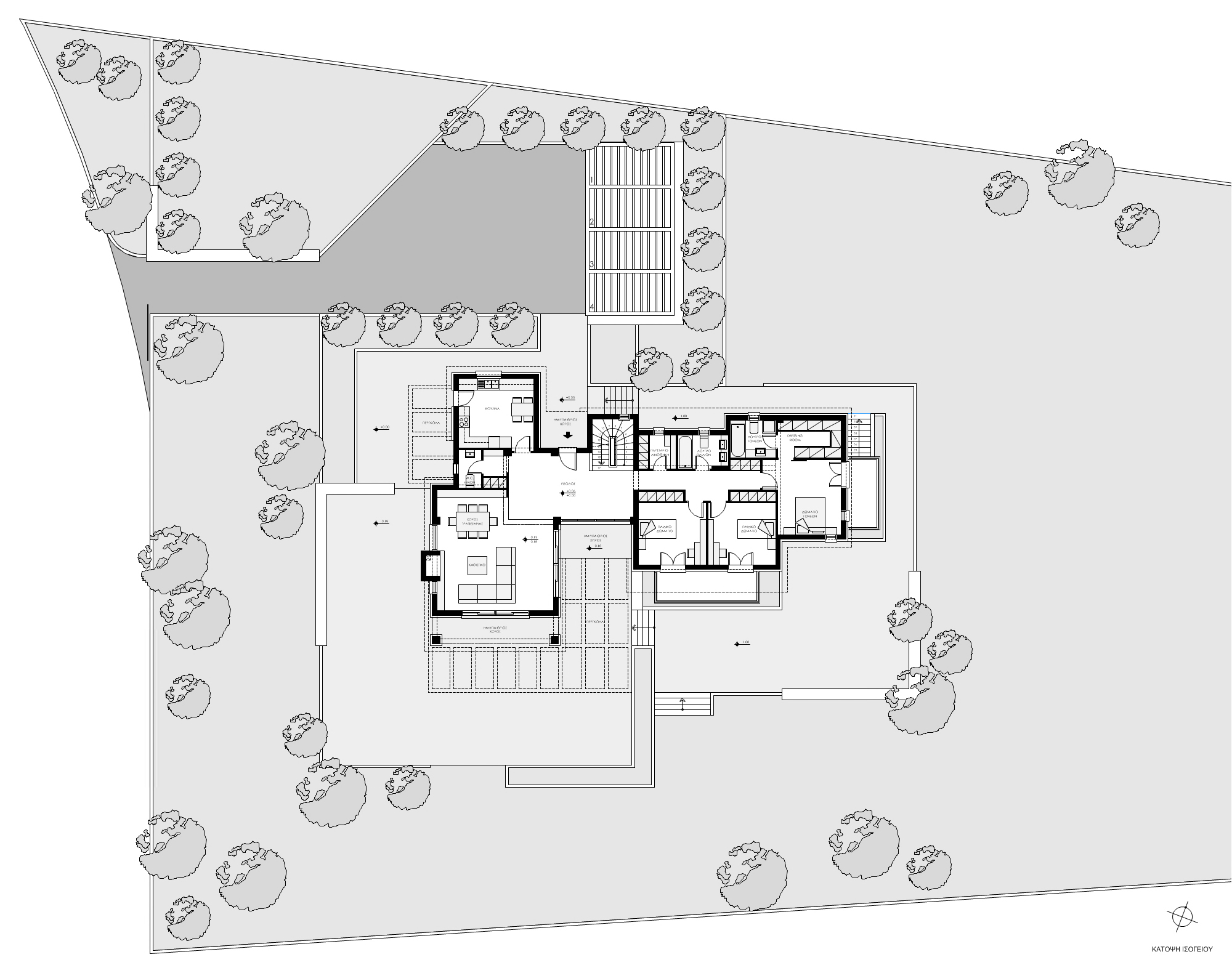
This is a single storeyed stone residence with a small piece of floor and basement. The space of entrance functions as a hinge on the functional organization of the house, clearly separating the private from the public areas and introducing visually the open space within the dwelling. All the main living rooms and bedrooms have large openings to the south, while on the north side are placed the auxiliary functions with small openings. On the floor, an open office area is situated, which overlooks the sitting room. Overall, the ground floor has an area of about 200 sq.m., while the floor has one of 30 sq.m.

Kassandreia, Chalkidiki

2009