ΚΤΙΡΙΟ ΚΑΤΑΣΤΗΜΑΤΩΝ ΚΑΙ ΚΑΤΟΙΚΙΩΝ | ΠΕΡΑΙΑ ΙΙ

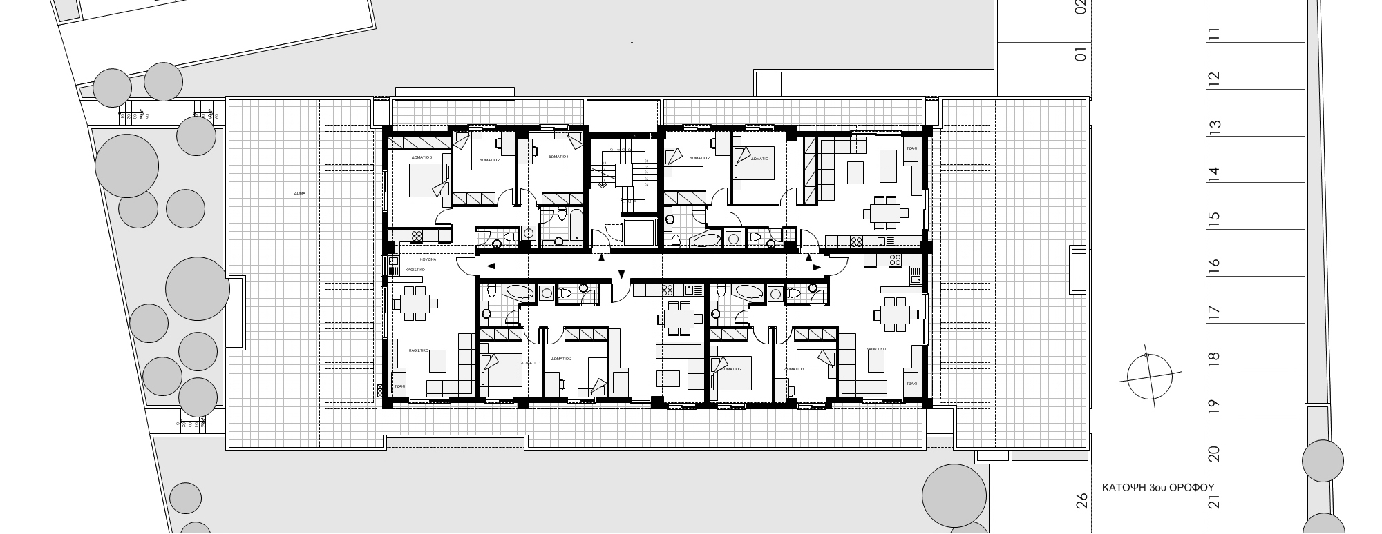
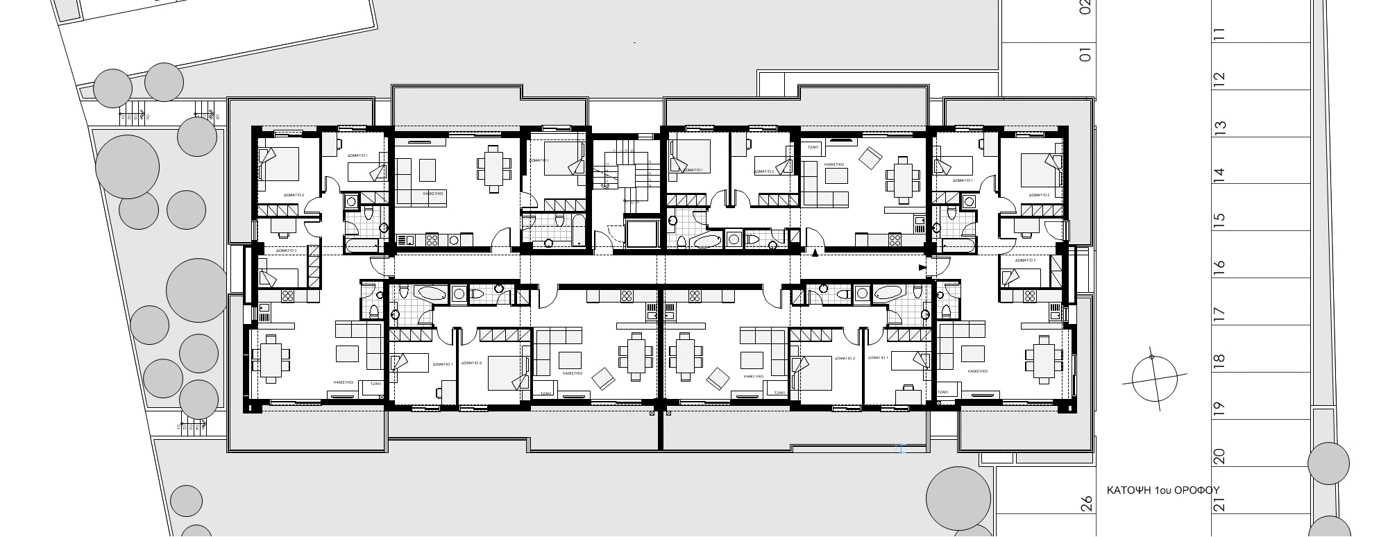
Το κτίριο στεγάζει στο ισόγειο καταστήματα με συνολική κάλυψη 530τ.μ. Έχει τρεις ορόφους και δεκαέξι διαμερίσματα συνολικά, καθένα από τα οποία έχει εμβαδόν περίπου 60τ.μ.

Περαία, Θεσσαλονίκη

2008